東京・千葉・神奈川のリフォームならアスプリード株式会社
03-3537-9770 受付時間 10:00-19:00(月〜土) お問い合わせ 24時間受付中 公式Instagram 公式Instagram 住宅あんしん保証

2025年10月24日

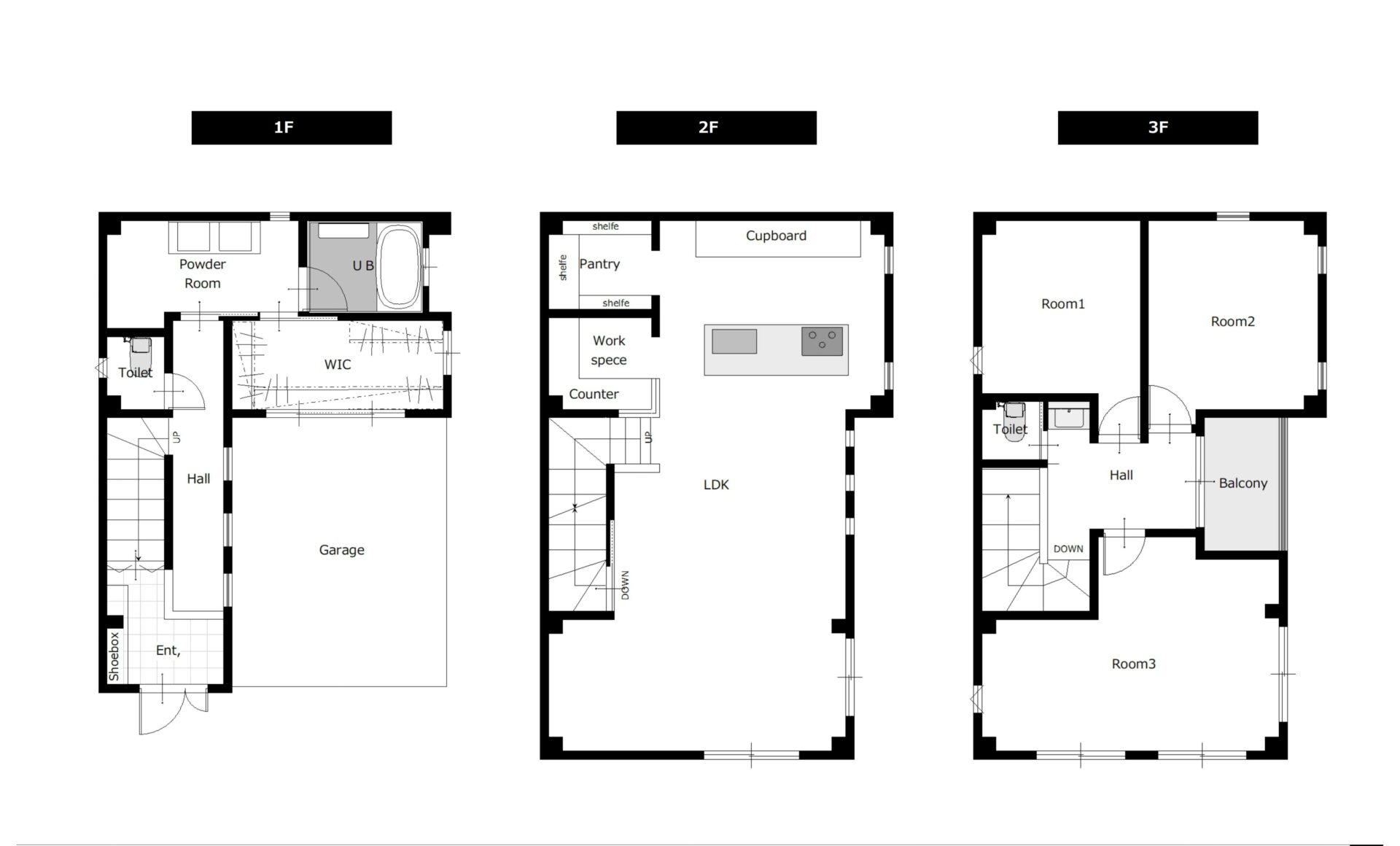
~中央区戸建て~リノベーション~

3Dパース提案事例のご紹介です*

実際の施工写真はこちらをクリック★

~中央区戸建て~リノベーション~